Tilaajille

Seu­ra­kun­ta saa uudet tilat Pa­te­nie­meen – Tuiran seu­ra­kun­ta tulee Keskon vuok­ra­lai­sek­si

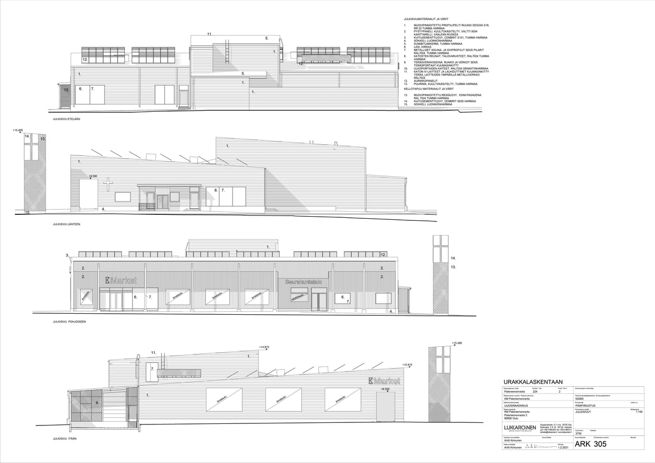
Seurakunta ja K-kauppa sijoittuvat rakennuksessa selvästi erilleen. Seurakunta suunnittelee myös kellotapulin rakentamista.
Seurakunta ja K-kauppa sijoittuvat rakennuksessa selvästi erilleen. Seurakunta suunnittelee myös kellotapulin rakentamista.
Kuva: anttik

Pateniemeen aiotaan rakentaa tilat kaupalle ja kirkolle saman katon alle. Kesko Oyj hakee rakennuslupaa "päivittäistavarakaupan sekä samaan rakennukseen sijoitettavien seurakunnan käyttöön tulevien tilojen rakentamiselle".

Seurakunnan ja kaupan toiminnot eivät kuitenkaan sijoitu samaan tilaan, vaan selvästi erillisiksi.

Tarjous vain nyt

Saat digin _maksutta_ 2 viikkoa

Mainos
Kalevan pelit

Pelaa Kalevan digitaalisia pelejä

Aivojumppaa tai rentoa ajanvietettä – tutustu peleihin ja löydä suosikkisi

Aloita pelaaminen
Ilmoita asiavirheestä