Yksiön ko­koi­nen oma­ko­ti­ta­lo­unel­ma

Uutta minikotirintamalla on nimenomaan pakettitalovalmistajien mukaantulo ja trendiin on tarttunut Jukkatalon lisäksi myös moni muu perinteisiä talopaketteja tarjoava yritys.

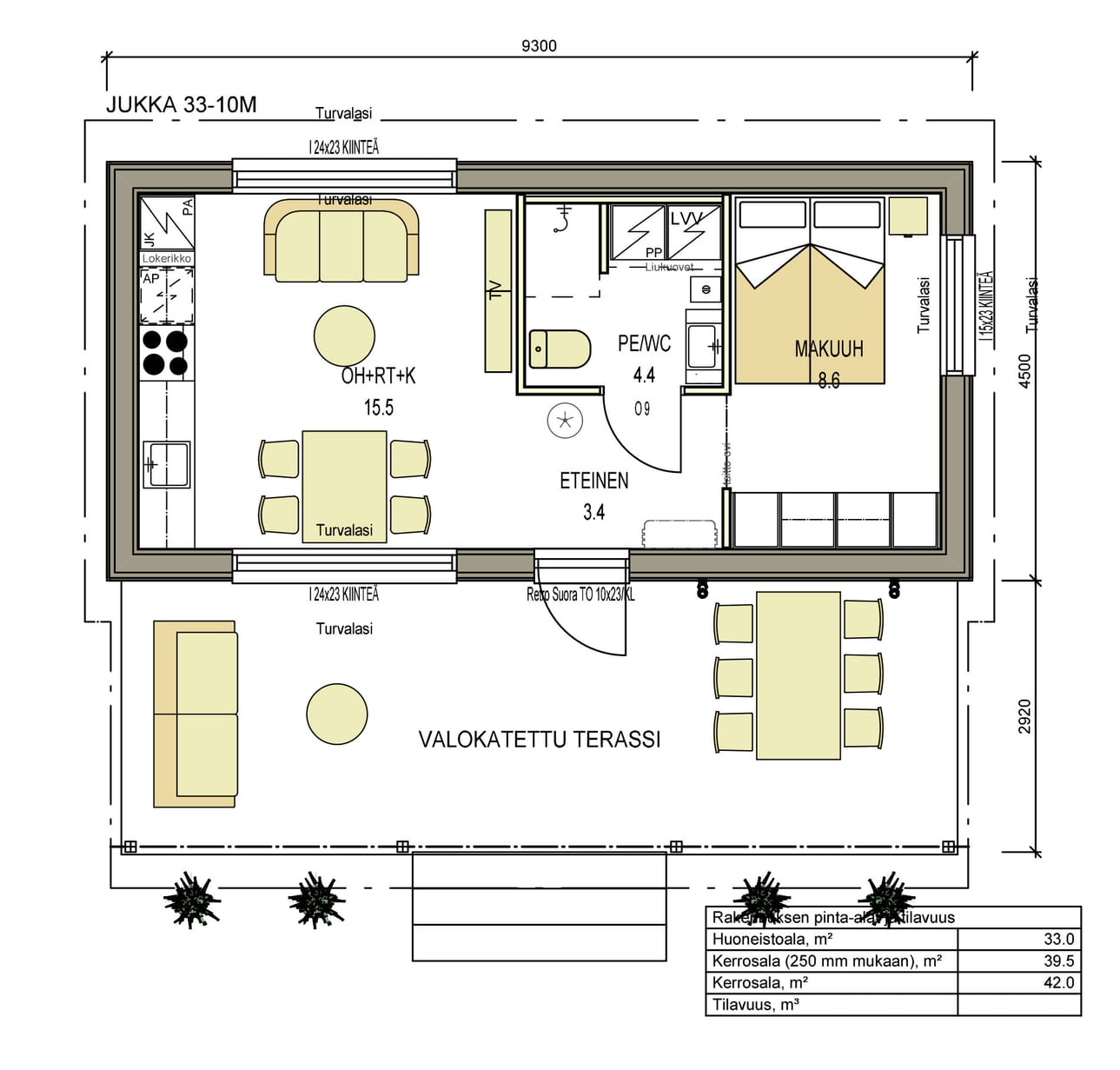
Talon huonetilat ovat avarat ja helposti kalustettavat. Talo muistuttaa ulkopuolelta vaakalaudalla päällystettyä terassillista pihavarastoa.
Talon huonetilat ovat avarat ja helposti kalustettavat.
Talon huonetilat ovat avarat ja helposti kalustettavat.
Kuva: Hanne Helminen

PikkuJukka 33–10M/33–11M. Jukkatalo Oy. Suunnittelu Pekka Kurkinen / Jukkatalo. 1h+kt(+s), 33 neliötä. Mh. 69 400 euroa (messukokonaisuus 81 400 euroa) + perustukset.

Tänäkin vuonna yksi asuntomessujen mielenkiintoisimmista taloista löytyi varsinaisten messukohteiden ulkopuolelta.

Viime vuonna trendikästä minikotiasumista esitteli SATO omalla StudioKoti-pilotillaan. Nyt vuoron sai Jukkatalo, joka lanseerasi alkuvuodesta 2016 pikkuperheille, sinkuille ja pariskunnille suunnatun pienten talojen mallistonsa.

Uutta minikotirintamalla on nimenomaan pakettitalovalmistajien mukaantulo ja trendiin on tarttunut Jukkatalon lisäksi myös moni muu perinteisiä talopaketteja tarjoava yritys.

PikkuJukka on tarjolla olevista eri valmistajien minikotipaketeista eniten oikeaa omakotitaloa muistuttava kokonaisuus.

Messujen pienimmän talon 33 neliön huoneistoalaan mahtuu kaikki tarpeellinen ilman hukkaneliöitä.

-

Vaihtoehtoisia pohjaratkaisuja on kaksi. Makuu- ja pesutilojen paikkaa vaihtamalla voidaan priorisoida kodin toimintoja. Saunattomassa versiossa on kunnollinen makuuhuone, saunallisessa vain pieni makuualkovi.

-

Saunan mahduttaminen näihin neliöihin ei välttämättä ole järkevää, kun omakotitalon kyseessä ollen on yleensä mahdollista rakentaa myös pieni sievä pihasauna, joka lienee muutenkin parempi ja aidompi vaihtoehto kuin postimerkin kokoinen huoneistosauna. Messuilla esillä oli saunaton talomalli.

Vaikka sisältö talotekniikkaa myöten onkin moderni ja toteuttaa erinomaisen hyvin nykyaikaiset asumismukavuudet, ulkopuoli on lattiaan asti ulottuvia ikkunoita lukuun ottamatta melko vanhanaikainen.

Ulkoarkkitehtuurin mitäänsanomattomuus, ja joskus jopa suoranainen rumuus, tosin on ollut pakettitalojen vitsaus kautta aikojen, eikä PikkuJukkakaan valitettavasti tee tässä toivottua poikkeusta.

Suurin ongelma talossa on siis sen tympeä ulkonäkö. Se muistuttaa rehellisesti sanottuna vaakalaudalla päällystettyä terassillista pihavarastoa, joka yllättäen kätkeekin sisäänsä asunnon.

Siksi se ehkä sopii itsenäistä taloa paremmin pihapiirin perälle päärakennuksessa asuvan väen nuoremman tai vanhemman sukupolven omaksi pikku asumukseksi tai vaikka vierasmajan virkaa toimittavaksi kakkosasunnoksi.

Talo muistuttaa ulkopuolelta vaakalaudalla päällystettyä terassillista pihavarastoa.
Talo muistuttaa ulkopuolelta vaakalaudalla päällystettyä terassillista pihavarastoa.
Kuva: Hanne Helminen



Talon pienestä fyysisestä koosta huolimatta esimerkiksi esteettömyys on otettu huomioon leveinä kulkuväylinä ja muutenkin melko avarina, fiksusti kalustettavina huonetiloina. Tämä lisää soveltuvuutta iäkkäämmille asukkaille
– onhan tämän päivän tavoite kuitenkin se, että vanhukset asuisivat omissa kodeissaan mahdollisimman pitkään.

Karvalakkimallin hinta ei edes hirvitä, onhan se nyt sentään omakotitalo, joka mahtuu helposti normaalia pienemmälle tontille. Minitalot saattaisivat näin olla vastaus kaupunkien kalliin tonttimaan entistä tehokkaampaan hyödyntämiseen. Ne sopivat luontevasti myös vapaa-ajan asunnoksi.

Tuunatussa messutaloversiossa oli ylimääräistä, muun muassa hieman isompi terassi, ilmalämpöpumppu ja korkeamman hintaluokan kalusteet, varusteet ja sisustustarvikkeet.


Ilmoita asiavirheestä