Ri­ta­har­jun aluetta täy­den­ne­tään

Asunto Oy Oulun Ritari, Klippatie 5, 90540 OuluC15, 3h+k+s 62 m2 Luja Koti

Asunto Oy Oulun Ritari rakennetaan matalaenergiakohteena, mikä takaa edulliset  käyttökustannukset.
-

Asunto Oy Oulun Ritari,
Klippatie 5, 90540 Oulu
C15, 3h+k+s 62 m2
Luja Koti

Oulun Ritaharjun alueelle on viime aikoina noussut kiivaaseen tahtiin asuntoja. Lähinnä pientaloista koostuvaa asuinaluetta täydentää Asunto Oy Oulun Ritari, joka muodostuu kahdesta yksitasoisesta rivitalosta sekä kaksikerroksisesta luhtitalosta. Asuntoja on yhteensä noin parikymmentä.

Kymmenen kilometrin päässä keskustasta, Ritaharjun alueelta, löytyvät tiiviin asuntorakentamisen lomasta palvelut. Pian myös aluetta palvelee ostoskeskus.

Luhtitalon ensimmäisen kerroksen asuntoihin noustaan pieniä asuntokohtaisia luiskia pitkin, toisen kerroksen luhtikäytävälle johtaa talon keskiosassa sijaitseva portaikko.

Luhtitalon ja Ritaharjuntien välissä on muuri. Alue on kauttaaltaan aidattu. Parvekkeet avautuvat tielle päin, eli länteen.

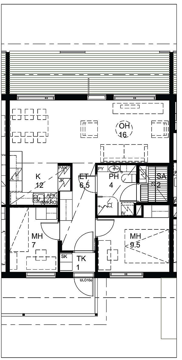
Asuntoon C15 tullaan luhtitasanteelta sisään neliömetrin kokoiseen tuulikaappiin. Tuulikaapin jälkeen edessä on käytävämäinen eteinen. Ennen eteisen säilytyskaappeja on molemmilla puolilla sisäänkäynti asunnon kahteen makuuhuoneeseen.

Molemmat makuuhuoneet ovat pieniä. Säilytystilaa on erittäin vähän. Oikealla olevaan makuuhuoneeseen ei parisängyn sivuille mahdu yöpöytiä. Huoneeseen voi sijoittaa työpöydän tai lisätilaa saadakseen lipaston.

Toisen, seitsemän neliön kokoisen makuuhuoneen, ikkuna avautuu luhtikäytävälle. Tämä huone soveltuu paremmin työhuoneeksi kuin makuuhuoneeksi.

Pesuhuoneessa on onnistuttu välttämään suuri hukkatila, mutta jotain käytännön ongelmia siinä on. Vessapönttö on sijoitettu liian ahtaaseen paikkaan aivan pöytätasoon kiinni.

Suihku on suoraan oven vieressä, vaikka sen käytännöllisempi paikka olisi pesuhuoneen perällä, jolloin veden leviämiseltä vältyttäisiin.

Olohuone ja keittiö sijaitsevat lännen puolella. Pitkänmallinen olohuone on kalustettavissa järkevästi vain yhdellä tavalla. Liikaa ei tilaa ainakaan ole. Ruokailutilassa taas on tilaa suurellekin ruokaryhmälle.

Osakkeenostaja voi valita keittiö-, eteis- ja tuulikaappikalusteet ilman lisäkuluja viidestä MDF-värivaihtoehdosta.

Asuntoa varjostaa ja viilentää suuri, asunnon levyinen parveke, jossa on umpiseinät ja katon harja laskeutuu sen ylle.

Parvekkeella on umpinainen kaide ja yläosa on lasitettu. Parveke on niin syvä, että sinne mahtuu mukava kesäkalustus.

Ilmoita asiavirheestä