Pis­te­ta­lo vai la­mel­li­ta­lo?

Pistetalo ja lamellitalo ovat kaksi kerrostalon perustyyppiä.

Pitkänomaisessa kadunvarsitalossa porrastasanne muodostuu usein käytävämäiseksi, ja asunnot avautuvat joko <br/><br/>pihalle tai kadulle. Toivoniemen pistetalojen asunnoista avautuu avaria näkymiä suistoalueelle.
Pitkänomaisessa kadunvarsitalossa porrastasanne muodostuu usein käytävämäiseksi, ja asunnot avautuvat joko pihalle tai kadulle.
Pitkänomaisessa kadunvarsitalossa porrastasanne muodostuu usein käytävämäiseksi, ja asunnot avautuvat joko pihalle tai kadulle.

Pistetalo ja lamellitalo ovat kaksi kerrostalon perustyyppiä. Pistetaloissa porraskäytävä on keskellä ja asunnot sen ympärillä, talo on yleensä hahmoltaan tornimainen ja sijaitsee erillään naapureistaan. Asunnot avautuvat tornin joka suuntaan. Tyypillisessä lamellitalossa taas on useampia porraskäytäviä, talo on hahmoltaan matalampi ja pitkänomainen sijaiten usein kadun varressa.

Perustyypeistä on variaatioita ja ne saattavat joskus lähestyä toisiaan. Puhdasoppinen lamellitalokin on nykyään harvinainen, kun porraskäytävien määrä pyritään kustannussyistä minimoimaan. Lamellitalojen kulta-aikana kolmikerroksiseen kerrostaloon ei tarvittu hissiä, jolloin kustannukset pysyivät kohtuullisina.

Nykyään hissi on vakiovaruste, jolloin sen hintaa jakamaan tarvitaan useampia asuntoja. Tällöin venytetään usein porrastasannetta sen verran, että samaan tasoon saadaan useampia asuntoja. Parhaimmillaan - tai pahimmillaan - kerrostasanteen asuntojen määrä lähestyy kymmentä, kun elementtikauden kerrostasanteilla oli tyypillisesti 3-4 asuntoa.

Porraskäytävän venyessä vähenee myös läpitalonhuoneistojen määrä. Yhdellä kerrostasanteella niitä voi olla enimmillään kaksi, koska asunnon läpi ei voi kulkea naapuriin. Muut asunnot avautuvat vain yhteen suuntaan käytävän estäessä yhteyden talon toiselle puolelle.

Läpi talon yltävät tavallisesti suurimmat huoneistot, mutta jos niitä on talossa kovin harvakseltaan, joutuu moni keskikokoisistakin asunnoista tyytymään vain yhdelle puolelle avautuviin näkymiin.

Pistetalossa on usein noin kahdeksan kerrosta, joskus enemmänkin. Neliömäisessä tornissa on neljä nurkkaa, muotoa murtamalla niitä voi saada helposti enemmänkin. Näin pistetalossa on suhteellisen helppoa suunnitella 4-6 asuntoa kerrokseen siten, että asunnosta avautuu näkymä kahteen suuntaan.

Oulussa ehkä tunnetuimmat pistetalot ovat Toivoniemessä ja alue sopiikin hyvin kuvaamaan ratkaisun piirteitä ja vaikutuksia kaupunkikuvaan.

Asunnoista on hyviä näkymiä eri suuntiin, mitä edesauttaa talojen pieni jalanjälki, joka jättää paljon vapaata tilaa talojen ympärille. Tämä sopiikin suistoalueelle hyvin. Maantasolla ollaan yhtä suurta perhettä naapuritalojen asukkaiden kanssa; omaa yksityistä pihaa ei juurikaan muodostu. Silloilta kantautuva liikennemelu leviää esteettä, samoin Kuusisaaresta ajoittain kantautuva musisointi on koettu häiritsevänä.

Viime vuosikymmeninä kaupunkisuunnittelussa on pyritty rakentamaan perinteisiä umpikortteleita. Näitä on Oulussa noussut esimerkiksi Heinäpäähän, Lyöttyyn ja kasarmialueelle. Katutilat ovat ehyitä, kortteleiden sisätilat rauhallisia. Malli sopiikin hyvin keskusta-alueille.

Asunnot avautuvat joko pihalle tai kadulle. Jotta pihoista ei tulisi kovin varjoisia, on taloilla korkeutta yleensä enintään viisi kerrosta. Tällöin porrastasanteen asuntojen määrä pyrkii kasvamaan, kuten edellä on kuvattu.

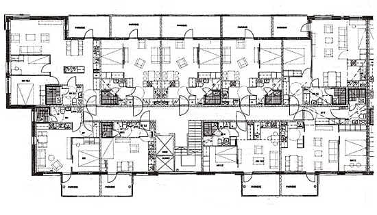
Esimerkkinä ohessa esitetyssä Intiöön muutama vuosi rakennetussa kerrostalossa (Sato-rakennuttajat Oy, Arkkitehtitoimisto Kari Harmainen Oy) on yhdeksän huoneistoa saman hissinoven ympärillä.

Toisinaan pitkä sisäkäytävä korvataan varsinkin matalammissa kerrostaloissa luhtikäytävällä. Tällöin käytävän viereiset asunnot saavat valoa myös luhtikäytävän puolelta. Ohikulkijoiden takia käytävän puolelle sijoitetaan yleensä sellaisia huoneita, joille riittää yläikkuna, esimerkiksi pesutilat, joskus myös keittiö.

Värtön ja Välivainion uusissa kerrostalokortteleissa näyttää saavan jalansijaa malli, jossa matalampia lamellitaloja täydentävät korkeammat pistetalot.

Yhdistelmä, jota ei ole juurikaan uudistuotannossa nähty, on matalien kaupunkipientalokortteleiden ja korkeiden tornitalojen yhdistelmä. Vanhassa Raahessa malli on toteutettu, kun vesitornin, asuinkerrostalon ja terassiravintolan yhdistelmä nousee vanhan puukaupungin laidalla, ja vähän samaa harrastettiin myös Toppilansaaren asuntomessualueella.

Ratkaisumalli voisi antaa eväitä yhdistää puukaupungin intiimiä tunnelmaa rakentamisen tehokkuuteen. Matalista taloista ja puukaupungeista pidetään, samaten tornitkin jaksavat aina kiehtoa mieltä.

Liekö se sitten arkkitehdin yhtenäisyyttä kaipaava silmä, johon tuo yhdistelmä tuntuu joskus särähtävän. Ehkä asian voisi mieltää niin, että kauniiksi mielletyssä metsässäkin on harvakseltaan korkeita puita, ja niiden alla matalampaa aluskasvillisuutta. Olisiko tästä kehitettävissä metsäsuomalaiselle sopiva kaupunkiasumisen malli?

Jouko Kunnas

Mainos
Kalevan pelit

Pelaa Kalevan digitaalisia pelejä

Aivojumppaa tai rentoa ajanvietettä – löydä suosikkisi klassikoiden ja uutuuksien joukosta.

Aloita pelaaminen
Ilmoita asiavirheestä