Ilmettä puun­vä­ri­sis­tä kuis­ti­ra­ken­teis­ta

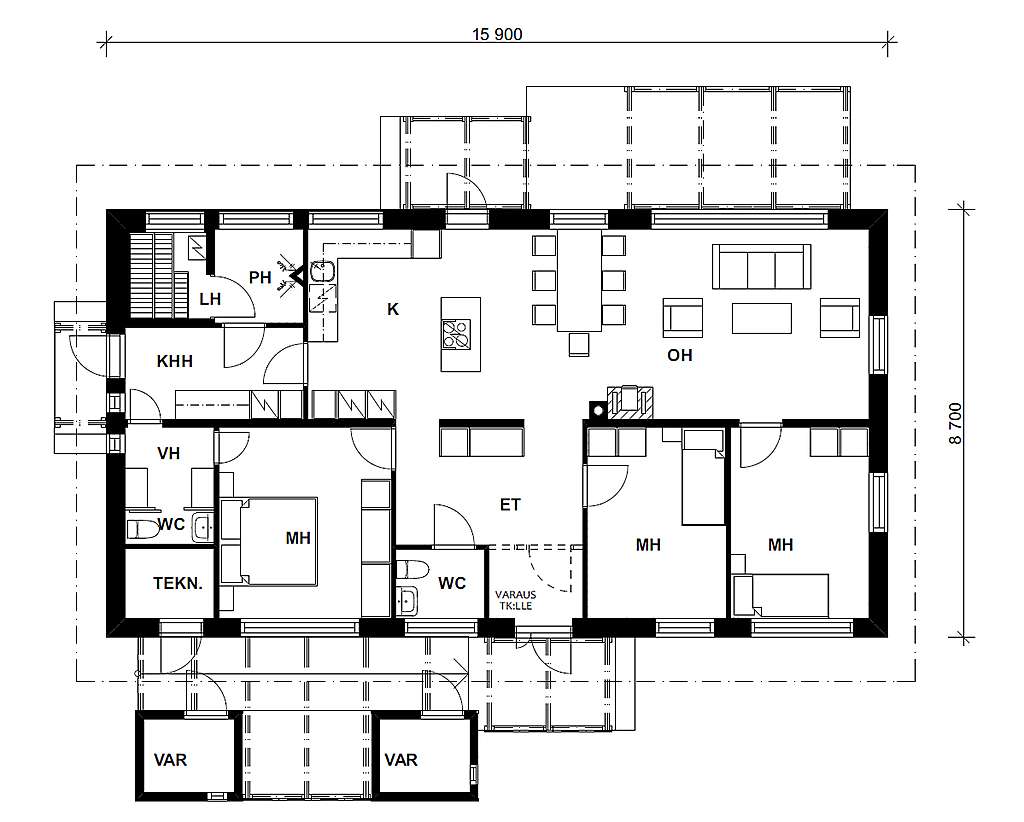
Luja-kivitalon Kivisydän -malliston KS 115, 4 h + k, huoneistoala 115,5 m2.

Luja-kivitalon Kivisydän -malliston KS 115 on selkeälinjainen kivitalo, joka saa ilmettä puunvärisistä kuisti- ja varastorakenteista. Huoneistoalaa siinä on 115,5 neliötä.
-

Luja-kivitalon Kivisydän -malliston KS 115, 4 h + k, huoneistoala 115,5 m2

Lujabetonin uusi Kivisydän-talopaketti toimitetaan lämpövalmiiksi asennettuna. Talotoimittajan mukaan kuusi erikokoista taloa käsittävän malliston ideana on tarjota asiakkaille kustannustehokkaita ja siten kohtuuhintaisia kivitaloja.

Kivitaloille tyypilliseen tapaan talomalli KS 115 on selkeä muodoltaan. Ulkokuoren vaalea rappaus, harmaat ikkunanpuitteet ja ikkunamuotojen selkeys sekä yksinkertainen harjakatto tuottavat turvallisen oloista ja aikaa kestävää muotokieltä.

Ilmettä vähäeleiseen vaaleaan kivitaloon tuodaan puurakenteisilla ja nykyarkkitehtuuriin tyypillisesti puunvärisillä varasto ja kuistirakenteilla, joiden tasakattoisuus vain voimistaa ulkoasun moderniutta.

Selkeälinjaisuus jatkuu talon sisätilojen suunnittelussa. Talo jakautuu nimittäin pitkittäisellä kaskilinjalla makuutiloihin ja yhteistiloihin. Jako kahteen tuottaa helposti hahmottuvan ja monella tavalla toimivankin ratkaisun kodin pohjaan.

Nykytavasta poiketen tähän taloon on esitetty tilavaraus tuulikaapille. Vessa on tuulikaappivarauksen vieressä. Eteinen on toimivan oloinen kokonaisuus, joka rajautuu keittiöstä ja oleskelutiloista vaatenaulakolla.

Talon eteisestä pääsee kolmesta makuuhuoneesta kahteen, joten makuu- ja oleskelutilojen erillisyys ratkeaa kohtuullisen hyvin.

Tilojen moninaiskäyttöäkin on ajateltu. Vanhempain makuuhuoneen takana oma wc sekä vaatehuone, jonka kautta pääsee kodinhoitohuoneeseen ja pesutiloihin. Ratkaisu on omiaan esimerkiksi vauvaperheessä tai vuorotyötä tekevälle.

Olohuoneesta kuljettavan makuuhuoneen voi uskoa muuntautuvan moneen, vaikka kirjastohuoneeksi sitten, kun kolmelle makuuhuoneelle ei enää ole käyttöä.

Keittiö, ruokailutila ja olohuone muodostavat pitkänomaisen yhteistilan. Neliöitä ei ole valtavan paljon, mutta tilan muoto lisää avaruuden tuntua.

Muutoinkin asuinneliöt ovat tehokkaassa käytössä. Vaikka KS 115 on huoneistoalaltaan nykyomakotitaloksi pieni, se riittää hyvin kaksilapsisen, ehkä isommankin perheen asunnoksi.

Keittiön perältä kuljetaan kodinhoitohuoneeseen, joka toimii kompaktiksi suunniteltujen saunatilojen pukuhuoneena. Saunatiloissa ei ole omaa vessaa. Kohtuullisen läheltä sellainen löytyy, joskaan saunamärkänä vessaan meno vaatehuoneen läpi ei tunnu parhaalta mahdolliselta ratkaisulta.

Kodinhoitohuoneesta on uloskäynti talon päätyyn. Samaa reittiä mennään myös vilvoittelemaan.

Pääty on sopivasti erillään talon muista ulkotiloista, mutta ainakin tiiviissä kaupunkirakenteessa saunapunakka tupsahtaa helposti suoraan naapurin ikkunan alle vilvoittelemaan. Vaatii usein suojaustoimia.

Takapihalle johtava ovi sijoittuu sopivasti keittiön ja ruokailutilan väliin, jolloin sitä kautta on hyvä mennä vaikka aamukahveja terassille juomaan.

Mainos
Kalevan pelit

Pelaa Kalevan digitaalisia pelejä

Aivojumppaa tai rentoa ajanvietettä – löydä suosikkisi klassikoiden ja uutuuksien joukosta.

Aloita pelaaminen
Ilmoita asiavirheestä